雲熙大厦项目总平面规划公示

发布时间: 2021-12-03 10:45:00

周边利害关系人:

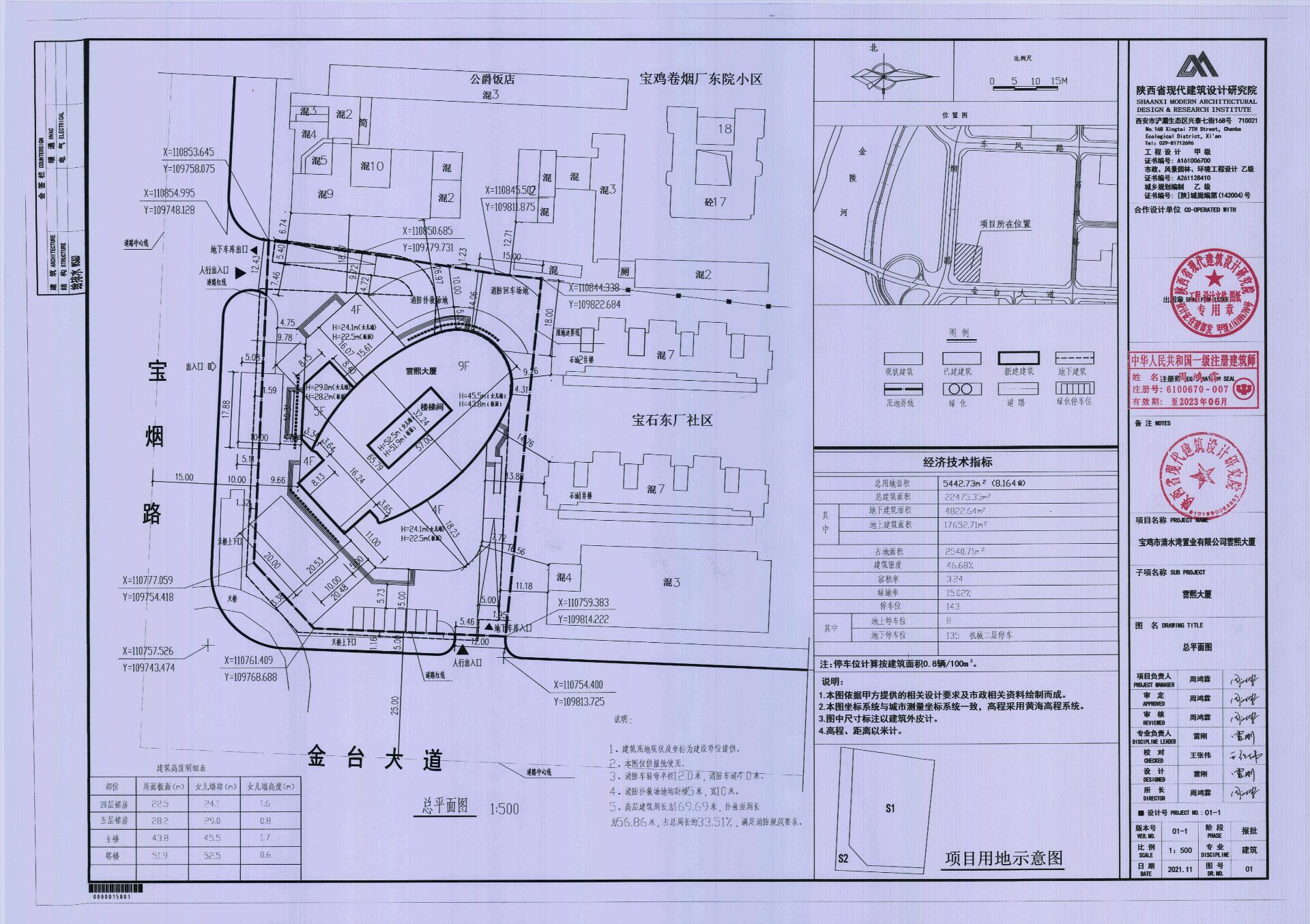
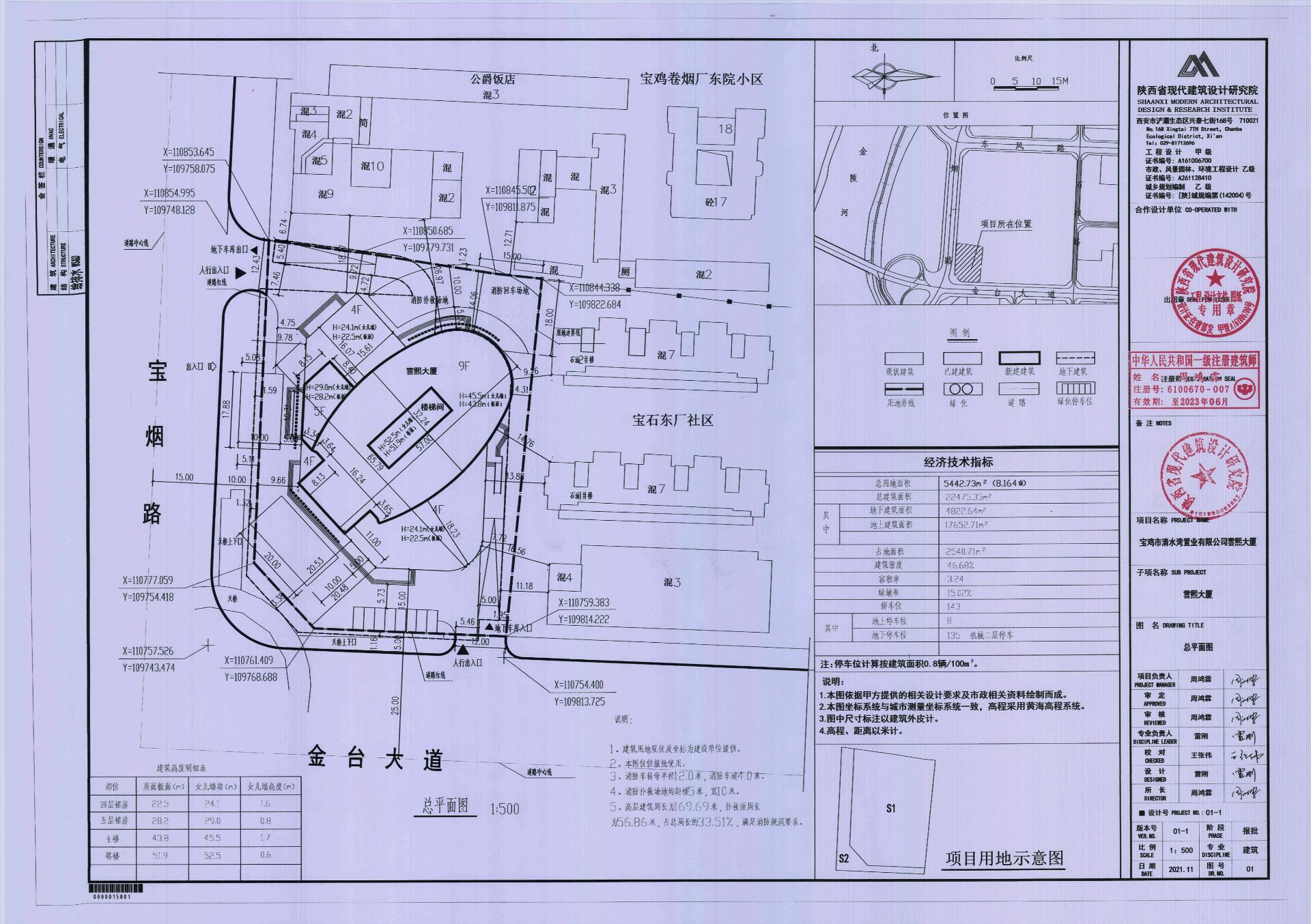
近日我局接到宝鸡市清水湾置业有限公司报来的《关于雲熙大厦总平面图审批的申请》及雲熙大厦项目总平面规划方案图。该项目位于宝烟路以东、公爵饭店以南、金台大道以北、宝鸡石油机械有限责任公司住宅区以西,规划总用地面积10.243亩。该项目为在原已建设的地下车库、地上1至4层商业楼基础上的改扩建项目。原地下车库和地上一至四层商业楼于2014年6月由原市规划局已规划许可。宝鸡市清水湾置业有限公司于2020年9月完成供地手续,违法建设5至9层办公楼,违法建设行为已经规划执法部门处理办结。经市规划设计院审查,该总平面图还存在以下问题:

1、报送总图中高层建筑与东侧石油小区1#、2#住宅楼之间的间距分别为14.76米、9.26米,规范要求垂直布置时建筑间距不应小于20米。

2、违法已建成建筑对其周围现状住宅建筑日照的影响较原规划许可四层建筑影响户数一致,共计影响13户,分别为宝石社区12户,烟厂路2号院7号楼1户。

考虑该项目为历史遗留项目,且该违法行为已经规划执法部门处理完毕,建筑间距满足消防间距要求,宝鸡石油机械有限责任公司已对现状建筑间距予以认可,日照不足问题已与相应住户签订补偿协议。经市规委会审定,拟同意该总平面方案(具体参见雲熙大厦项目总平面规划方案图),为提高社会公众参与及监督城市规划管理工作的积极性,增加规划审批的透明度,按法定有关规划审批程序,现将拟审批方案在项目现场、宝鸡日报同时进行公示,征求利害关系人意见。如周边利害关系人对公示规划方案有意见和建议,请以书面或电话向市自然资源和规划局反映。


公示日期:自发布之日起十个工作日止

联系人:  李银霞      联系电话:3260255


附图:


宝鸡市自然资源和规划局

                              2021年12月1日